Дом барнхаус «Вирелла»
Цена:
от 4398000 р.
Общая площадь:
220,50 м2
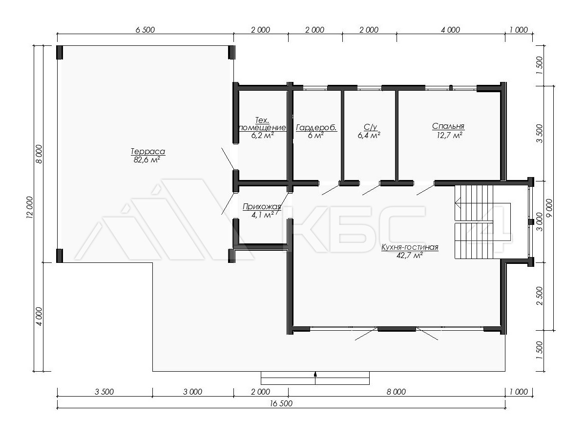
Размеры дома:
16,5 х 9 м
Этажей:
1,5
Гараж:
Срок строительства:
от 45 дней
- Комплектация
- Планировка
- Ход строительства
Стоимость строительства дома барнхаус "Вирелла" (работа+материал)
| Толщина наружной стены дома | |||
| Варианты комплектации ↓ | 100 мм | 150 мм | 200 мм |
| Каркас |
от 4 398 000₽ |
от 4 840 000₽ |
от 5 720 000₽ |
| Каркас с утеплением | от 6 600 000₽ | от 7 260 000₽ | от 8 360 000₽ |
| Под отделку | от 9 240 000₽ | от 9 900 000₽ | от 11 220 000₽ |
Комплектация дома
| Комплектация | Каркас | Каркас с утеплением | Под отделку |
|---|---|---|---|
| Фундамент | Винтовые сваи 108 х 2,5 м. | ||
| Гидроизоляция | Рубероид в двойном слое. Укладывается между фундаментом и обвязочным венцом. | ||
| Обвязочный венец | Брус 150х150 мм (для каркаса с толщиной наружной стены 100 или 150 мм); брус 150х200 мм (для каркаса с толщиной наружной стены 200 мм). | ||
| Лаги | Доска 50х150 мм (для каркаса с толщиной наружной стены 100 или 150 мм); доска 50х200 мм (для каркаса с толщиной наружной стены 200 мм). | ||
| Черновой пол | Доска 20х100 мм не строганая камерной сушки (обрабатывается антисептиком). | ||
| Сетка от грызунов | Монтируется по черновому полу. | ||
| Каркас дома (внешние стены) |
доска 50х100 мм (для каркаса с толщиной наружной стены 100 мм); доска 50х150 мм (для каркаса с толщиной наружной стены 150 мм); доска 50х200 мм (для каркаса с толщиной наружной стены 200 мм). |
||
| Перегородки | Брус 50х100 мм не строганный камерной сушки с шагом 59–79 см. | ||
| Ригель | Брус 50х100 мм не строганный камерной сушки. | ||
| Раскосы | Брус 50х100 мм не строганный камерной сушки. | ||
| Внешняя отделка (стены, фронтоны) | Имитация бруса камерной сушки класс АБ с технологическим зазором 2 см через контр-рейку. | ||
| Утепление (внешние стены) | - |
100 мм (для каркаса с толщиной наружной стены 100 мм); 150 мм (для каркаса с толщиной наружной стены 150 мм); 200 мм (для каркаса с толщиной наружной стены 200 мм). |
|
| Утепление пола, потолка | - |
100 мм (для каркаса с толщиной наружной стены 100 мм); 150 мм (для каркаса с толщиной наружной стены 150 мм); 200 мм (для каркаса с толщиной наружной стены 200 мм). |
|
| Утепление перегородок | - | 100 мм Роквул (или аналог), пароизоляция по верх утеплителя Ондутис В (или аналог), затем рейка 20х50 мм. | |
| Внутренняя отделка (стены, потолок) | - | - | Имитация бруса камерной сушки класс АБ с технологическим зазором 2 см через контр-рейку. |
| Окна | - | Стеклопакеты двухкамерные Rehau 70 профиль (согласно проекту), москитные сетки, подоконники, отливы. | |
| Наличник на окна | - | Деревянный строганый камерной сушки. | |
| Межкомнатные двери | - | - | Ламинированные (без фурнитуры). |
| Дверь входная | - | Металлическая с терморазрывом (производство Россия). | |
| Стропильная система |
доска 50х150 мм (для каркаса с толщиной наружной стены 100–150 мм); доска 50х200 мм (для каркаса с толщиной наружной стены 200 мм). |
||
| Кровельное покрытие | Металлочерепица 0,45 мм. | ||








